Beschrijving

Op de eerste verdieping gelegen 4 kamer appartement  met achter balkon aan een gezellig en groen plein met school, speeltuin, openbaar vervoer en winkels direct om de hoek. Het appartement heeft 3 slaapkamers en een ruime berging op de begane grond. Gelegen in de wijk Leyenburg, een gezellige wijk met vele voorzieningen op loopafstand. Vele winkels aan het Monnickendamplein met twee grote supermarkten. Daarnaast is het slechts 3 minuten lopen naar het Haga-ziekenhuis met voor de deur het openbaar vervoersknooppunt. Vanuit hier uitstekende bus- en tramverbindingen naar onder andere het centrum van Den Haag en Scheveningen. Ook bent u binnen 10 fietsminuten van de duinen en het strand van Kijkduin.

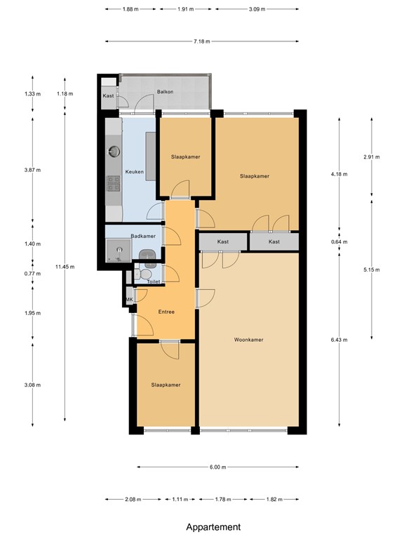
Indeling

Toegang via een centrale gesloten entree met brievenbussen- en bellentableau, trap of lift naar de eerste etage, entree via hal met meterkast, woonkamer met toegang tot de voorzijkamer, separaat toilet met fonteintje, badkamer met douche, wastafel en de opstelplaats voor de wasmachine en droger, de keuken is in 2017 vernieuwd en voorzien van losse koelkast en 4-pits gaskookplaat, vaatwasser en een oven en combimagnetron oven, toegang tot het ruime balkon met balkonkast, tussenslaapkamer en een ruime slaapkamer aan de achterzijde. Op de begane grond is een eigen fietsenberging aanwezig. Zie de plattegronden voor de afmetingen.

Bijzonderheden

- gelegen op eigen grond 
- bouwjaar 1969 
- actieve VVE, bijdrage € 207,47 per maand. 
- voorschot stookkosten ca. 69,79 per maand 
- Recent is de voorzijde en achterzijde van de woning geschilderd 
- gebruiksoppervlakte ca. 79 m²
- elektra 4 groepen 
- huurboiler € 13,66 per maand 
- verwarming via blokverwarming 
- houtenkozijnen met dubbel glas 
- berging aanwezig 
- op het achterliggende terrein is er een mogelijkheid om je auto te parkeren 
- notariskeuze is voorbehouden aan koper 
- energielabel E 
- verkoopvoorwaarden van LaCle VBO makelaars van toepassing. 
- gezien de leeftijd van de woning zullen de ouderdoms- en asbestclausule worden opgenomen in de koopovereenkomst. 
Wij hebben deze informatie, zoals u van ons mag verwachten, met veel zorg samengesteld. Toch komt het in uitzonderlijke gevallen voor dat blijkt dat de informatie niet volledig is. Daarom aanvaarden wij, als verkopend makelaar, geen aansprakelijkheid voor de juistheid en/of volledigheid ervan. Wat betekent dat er geen rechten ontleend kunnen worden aan de vermelde gegevens. We verstrekken u deze informatie om u uit te nodigen voor het plannen van een bezichtiging en het doen van een bod onder voorbehoud en gunning. Interesse in dit appartement...? Schakel direct uw eigen aankoopmakelaar in. Uw aankoopmakelaar komt op voor uw belang en bespaart u tijd, geld en zorgen. Adressen van collega aankoopmakelaars in Haaglanden vindt u op Funda.

Kenmerken