Beschrijving

Welkom bij deze leuke gerenoveerde 2 kamer parterrewoning. 
De woning is gesitueerd in het geliefde 'oud Scheveningen' op de hoek van de Jurriaan Kok en de Marcelisstraat. Geniet van het gemak van gelijkvloers wonen in een bruisende buurt, op slechts enkele minuten van het strand. Deze woning biedt het beste van twee werelden: de rust van een woonwijk en de levendigheid van een badplaats. Verder vindt je in de nabije omgeving van de woning divers winkelaanbod, openbaar vervoersverbindingen en een ruim aanbod van gezellige horecagelegenheden. 
-Bezoekers kunnen zich o.a. aanmelden door het contactformulier op Funda in te vullen. Bij voorkeur niet bellen. 
-Het inzien van de stukken & biedingen verlopen via de site van laclemakelaars. Druk vervolgens op de button: “Breng een bod uit”. Nu kom je op het platform van Eerlijk Bieden.

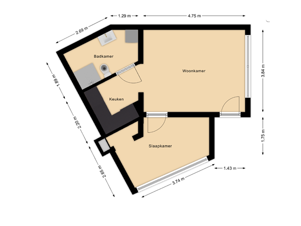
Indeling

Entree van de woning, bij binnenkomst betreed je de woonkamer. De ruime en lichte woonkamer biedt voldoende ruimte voor een comfortabele zit- en eethoek. Vanuit de woonkamer is er directe toegang tot de keuken en slaapkamer. Slaapkamer voor. Keuken met een net keukenblok in L opstelling met inbouwapparatuur. Nette badkamer met inloopdouche, wastafelmeubel, zwevend toilet, wasmachineaansluiting.

Dit is een unieke kans om te wonen in een net appartement in een van de meest geliefde wijken van Den Haag. De combinatie van modern wooncomfort en een fantastische locatie maakt dit appartement de perfecte keuze voor starters, alleenstaanden of als pied-à-terre.

Bijzonderheden

- Eerlijk Bieden: Op de site van laclemakelaars staat rechtsonder een button met de tekst: “Breng een bod uit”. Op deze pagina kunt u in de omgeving van Eerlijk Bieden de documenten opvragen of een bod uitbrengen.   
- Keuken: Nette keuken met inbouwapparatuur waaronder oven, 4 pits ceramische kookplaat, afzuigkap, koelvries combinatie
- Badkamer: Nette badkamer met inloopdouche, wastafelmeubel, zwevend toilet, wasmachineaansluiting 
- Electra: Meterkast met ca. 8 groepen, nieuwe schakelkast
- Verwarming: boiler
- Isolatie: Grotendeels dubbel glas m.u.v. de kleine bovenlichten.
- Staat van onderhoud binnen: Goed
- Staat van onderhoud buiten: Goed, er heeft in 2020 een renovatie plaatsgevonden.
- Parkeermogelijkheden: Goed
- Parkeerkosten: Betaald parkeren. Bewoners- en bezoekersvergunning mogelijk.
- Bereikbaarheid: Goed, nabij openbaar vervoer, scholen, winkels en uitvalswegen. 
- Ligging: De woning ligt letterlijk om de hoek van de geliefde en gezellige winkelstraat de Keizerstraat, met niet alleen winkels, supermarkten, speciaalzaken, maar ook veel gezellige horeca. Binnen een paar minuten lopen ben je op de boulevard, geweldig voor surfers en zonaanbidders. In de nabije omgeving heb je een ruime keus aan recreatie en sportmogelijkheden; werk je in het zweet tijdens een bootcamp of speel een potje beachvolleybal op het strand, een fijne wandeling door de duinen of het prachtige Rosarium, zwembad de Blinkerd, meerdere tennis/hockey/voetbalclubs, noem het maar op, het kan allemaal! De woning is goed bereikbaar middels openbaar vervoer en auto.
- VvE: Actieve V.v.E.; bijdrage € 78,30 p/m, 3/22-ste aandeel VvE, nrs. 133, 135, 137, Marcelisstr. 39 
- Inschrijving KvK: ja, beheer via ATF VvE Beheer  
- Reservefonds: ja, balans 29-12-2025: onderhoudsreserve € 28.333
- Onderhoudsplan: ja, periode 2021-2040
- Grond: Notarieel eeuwigdurend heruitgegeven recht van erfpacht per 16-12-1997, canon inclusief beheerkosten € 79,29 per half jaar, Algemene Bepalingen 1986 herziening 1993 is van toepassing. Het canon percentage wordt om de 5 jaar aangepast. 
- Energieprestatiecertificaat:  Label F, geldig tot 01-12-2035. 
- Verkoopcondities:   
> Biedingen verlopen via laclemakelaars.nl / breng een bod / Eerlijk Bieden
> Oplevering in overleg, korte termijn mogelijk;
> Notaris keuze aan koper mits gelegen in Den Haag; 
> Ongeacht het bouwjaar en de staat van onderhoud zal een ouderdomsclausule worden opgenomen.
> In onze koopovereenkomst worden verkoopclausules opgenomen. 
> “As is”, ouderdoms- en asbest- en loodclausules van toepassing
- WOZ: € 250.000 op waardepeildatum 1-1-2025

Kenmerken