Beschrijving

“Ruime, moderne eengezinswoning (5 slaapkamers) met terrastuin, grote woonkamer en twee eigen parkeerplaatsen!”

Aan de rand van de Vruchtenbuurt en Houtwijk, in het jonge en kindvriendelijke woonproject Hage Hoek, ligt deze ruime en energiezuinige eengezinswoning met een praktische indeling, veel licht en volop comfort. De woning beschikt over een ruime woonkamer met moderne open keuken, 5 slaapkamers, 1 badkamer, een  terrastuin én twee eigen parkeerplaatsen in de afgesloten parkeergarage direct achter de woning.

De ligging is ideaal: rustig, groen en toch centraal. Winkels, scholen, sportvoorzieningen en openbaar vervoer zijn op loopafstand. Met de fiets sta je binnen tien minuten op het strand of in de gezellige Vruchtenbuurt. Ook de uitvalswegen zijn goed bereikbaar.

Indeling

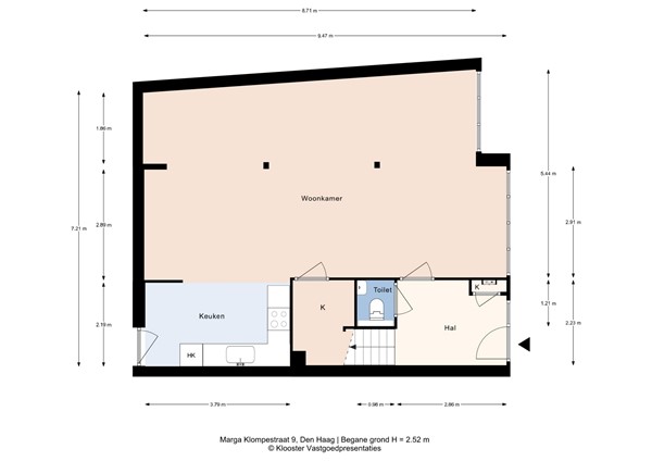
Begane grond: Entree, centrale hal met trap opgang, meterkast, toiletruimte, woon-/eetkamer met open keuken, achter binnendeur naar de 2 garage parkeerplaatsen, opbergmogelijkheden op parkeerplaats.

Eerste verdieping

Eerste verdieping: overloop, slaapkamer, 2de slaapkamer, toegang door middel van een schuifpui tot de daktuin met terras.

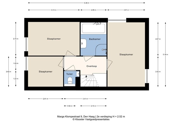
Tweede verdieping

Tweede verdieping: overloop; 3de slaapkamer, 4de slaapkamer en de 5de slaapkamer. Badkamer en separaat toilet.

Bijzonderheden

- Keuken: eenvoudige keuken met inbouwapparatuur waaronder oven, 4 pits inductie kookplaat, afzuigkap, vaatwasser, magnetron.
- Badkamer: eenvoudige badkamer met ligbad, wast-meubel, douche, ribbenradiator 
- Berging: opbergmogelijkheden op de parkeerplaats achter de woning. 
- Electra: Nieuwe meterkast.
- Isolatie: Geheel dubbel glas.
- Staat van onderhoud binnen: Voldoende
- Staat van onderhoud buiten: Goed
- Parkeermogelijkheden: zeer goed, 2 eigen parkeerplekken.
- Bereikbaarheid: Goed, nabij openbaar vervoer, scholen, winkels en uitvalswegen. 
- Ligging: Houtwijk, op 10 minuten afstand van het Centrum van Den Haag en het strand. 
- Grond: De erfpachtcanon is eeuwigdurend afgekocht. 
- Energieprestatiecertificaat:  Label A
- Verkoopcondities:   
- Biedingen verlopen via laclemakelaars.nl / breng een bod / Eerlijk Bieden
- Oplevering per direct.
- Notaris keuze aan koper mits gelegen in Den Haag; 
- In onze koopovereenkomst worden verkoopclausules opgenomen

Kenmerken