Beschrijving

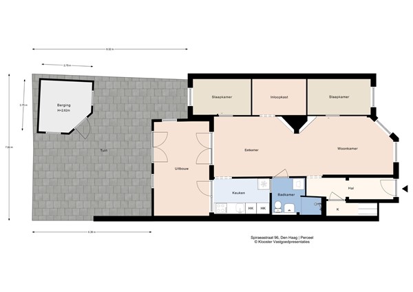
In de gezellige en gewilde Heesterbuurt ligt deze leuke, charmante en prima onderhouden 5 voorheen 6 kamer parterre (totaal 83 m2) met een grote uitbouw, achtertuin en houten schuur 
Het betreft een heerlijke lichte sfeervolle benedenwoning met zonnige achtertuin gelegen op het Zuid-Oosten gelegen in een zeer rustige straat en onderdeel van een gezonde VvE.

Bezoekers kunnen zich o.a. aanmelden door het contactformulier in te vullen of een email te sturen naar Ivo van LaCle (zie site van de makelaar). Bij voorkeur niet bellen. 

Het inzien van de stukken & biedingen verlopen via de site van laclemakelaars. Druk vervolgens op de button: “Breng een bod uit”. Nu kom je op het platform van Eerlijk Bieden.

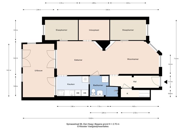
Indeling

Entree, overloop, berging met meterkast, doorgebroken woon-eetkamer, tussenkamer (momenteel walk-in closet, voorzijkamer. Ruime badkamer met wasmachine opstelplaats, inloopdouche met stort douche, toilet en designradiator. Achterzijkamer.
Keuken voorzien van net keukenblok met vaatwasser, oven, opstelplaats CR Remeha Tzerra CW4 combi ketel bouwjaar 2018, 4 pits inductie kookplaat en een rvs afzuigkap.
Via openslaande deuren bereik je de lichte uitbouw. 
En wederom via openslaande deuren toegang tot de zonnige achtertuin gelegen op het Zuid-Oosten. Er staan diverse planten/bomen in de achtertuin waaronder een frambozenplant, een druif, een vijg en een jasmijn. Houten schuur.

Bijzonderheden

Eerlijk Bieden: Op de site van laclemakelaars staat rechtsonder een button met de tekst: “Breng een bod uit”. Op deze pagina kunt u in de omgeving van Eerlijk Bieden de documenten opvragen of een bod uitbrengen.   
Electra: Meterkast met ca. 7 groepen, ca. 2x aardlekschakelaar, nieuwe schakelkast. Energiekosten per maand € 120.
Verwarming: Combiketel bouwjaar 2018.
Isolatie:  Geheel dubbel glas.
Staat van onderhoud binnen: Goed
Staat van onderhoud buiten: Goed
Parkeermogelijkheden: Goed
Parkeerkosten: Betaald parkeren. Bewoners- en bezoekersvergunning mogelijk.
Bereikbaarheid: Goed, nabij openbaar vervoer, scholen, winkels en uitvalswegen.
Ligging: Valkenboskwartier, Heesterbuurt, op 10 minuten afstand van het Centrum en het strand. 
VvE: Actieve V.v.E.; bijdrage € 75 p/m, 1/3-de aandeel VvE, nrs. 92-94-96, eigen beheer. 
Reglement 28-11-1972 van Neuteboom is van toepassing. Inschrijving KvK: ja. 
Jaarlijkse vergadering: ja, er wordt vergaderd, communicatie loopt via een Whatssapp groep. 
Reservefonds: € 4.506 op 26-08-2025; onderhoudsplan: ja, opstalverzekering: ja 
Grond: Eigen grond. 
Clausules: In onze koopovereenkomst worden verkoopclausules opgenomen. Ouderdomsclausule i.v.m. bouwjaar is standaard van toepassing
Verkoopcondities:   
- Oplevering in overleg, korte termijn mogelijk;
- Notaris keuze aan koper mits gelegen in Den Haag; 
Energieprestatiecertificaat:  Label E, geldig tot 27-01-2028. Dit betreft nog een oud label van de periode voor 2021. De makelaar schat in dat het werkelijke label D is, omdat de ketel nadien vernieuwd is en omdat de voordeur geïsoleerd is.

Kenmerken