 
     
            | Prijs | € 395.000,- k.k. | 
| Type object | Appartement, bovenwoning | 
| Woonoppervlakte | 73 m² | 
| Aanvaarding | Direct | 
Sfeervol en centraal gelegen 3 (voorheen 4) kamer appartement met balkon. De speelse indeling is tevens zeer efficiënt omdat de overloop gebruikt is om een ruime en luxe badkamer te creëren. De woning bevindt zich in de nabijheid van het Centraal station, centrum van Den Haag en uitvalswegen. Het Bezuidenhout is een levendige wijk met een groot aanbod aan winkels, restaurants en sportfaciliteiten. Het inzien van de stukken & biedingen verlopen via de site van laclemakelaars. Druk vervolgens op de button: “Breng een bod uit”. Nu kom je op het platform van Eerlijk Bieden. Charming and centrally located apartment close to the Central Station, city centre of The Hague and exit roads. Bezuidenhout is a very lively neighbourhood with a great variety of shops, restaurants and sport facilities. Worth your visit!
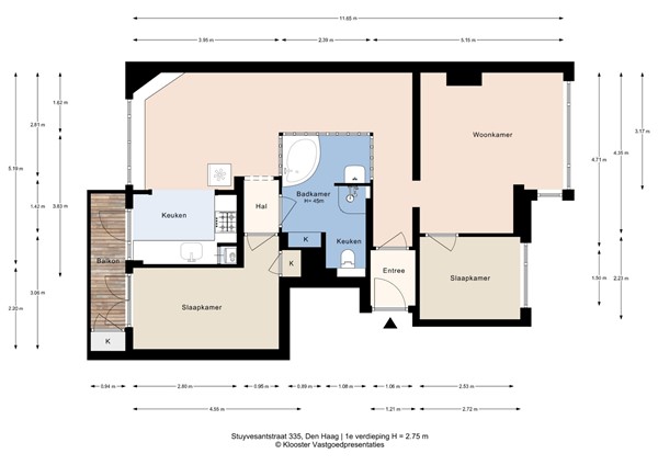
Open portiek, entree op de 1e verdieping, hal, woonkamer (5,13 x 4,34), massief houten vloer door de gehele woning, praktische boekenkasten in de woonkamer, nette radiator kasten voorzijde, voorzijkamer (2,26 x 2,91), brede overloop te gebruiken als werkkamer, eetgedeelte achterzijde (3,97 x 3,18) met vrij uitzicht op groen achter gebied, een keurig L-vormig keukenblok met een deels granieten aanrechtblad. Een losse vrijstaande koelkast (rvs), combimagnetron, 4 pits gasfornuis, roestvrijstalen afzuigkap, inbouw vaatwasser en een net spotjesplafond. Balkon achterzijde (3,66 x 1,02) met nieuwe balkonmuur en balkonkast (0,4 x 1), een luxe ruime badkamer voorzien van ruim ligbad, wastafel, douchecabine, designradiator, zwevend toilet en een wasmachine aansluiting, slaapkamer achterzijde (2,19 x 3,95) met openslaande deuren naar het balkon achter, moderne en ruime meterkast. Open porch, entrance on the first floor, hallway, living room (5,13 x 4,34), nice wooden floor throughout the whole apartment , room at the front side (2,26 x 2,91), corridor used as a study, dining at the backside (3,97 x 3,18) with a free view, kitchen with combi microwave, 4 pits stove, extractor, dishwasher, balcony at the backside with closet, luxurious spacious bathroom with bath, washbasin, showercabine, design radiator, toilet and washing machine connection. Bedroom (2,19 x 3,95) with doors to the balcony at the backside, closet with electricity meter.
Balkon aan de achterzijde. Balcony at the backside.
Keuken: L-vormig keukenblok voorzien van een keurig zwart granieten aanrechtblad, een losse roestvrijstalen koelkast, combimagnetron, 4 pits gasfornuis, roestvrijstalen afzuigkap inbouw vaatwasser Badkamer: luxe ruime badkamer voorzien van ligbad, wastafel, douchecabine, designradiator, zwevend toilet en wasmachine aansluiting Electra: 8 groepen, aardlekschakelaar, nieuwe schakelkast en H&L tariefmeter Verwarming: CV Remeha Avanta 28c CW4 combi ketel bouwjaar 2017. Gecontroleerd op 10-09-2025. Isolatie: Kunststof kozijn dubbel glas voor, achterzijde kan ook dubbel glas geplaatst worden. De openslaande ramen achter zijn reeds van dubbel glas. Staat van onderhoud binnen: Goed Staat van onderhoud buiten: Goed. Dak is nieuw. De dakgoot voor moet nog geschilderd worden. Parkeermogelijkheden: Goed, betaald parkeren. Vergunning mogelijk. Bereikbaarheid: Goed, nabij openbaar vervoer, scholen, winkels en uitvalswegen. Ligging: Gelegen in de wijk Bezuidenhout, dichtbij het centraal station, centrum van Den Haag en uitvalswegen. VvE: Stuyvesantstraat 333-335-337. Bijdrage € 80,- per maand. ¼-de aandeel in de VvE. Na plaatsing van de opbouw in 2024 is de splitsingsakte aangepast. Het onderhoud van de opbouw inclusief het dak komt voor rekening van de eigenaar van de opbouw. Kozijnen zijn ook niet gemeenschappelijk. Inschrijving KvK: ja. Jaarlijkse vergadering: ja, er wordt jaarlijks vergaderd. Reservefonds: € 4.128 op 08-08-2025; onderhoudsplan: nee (wel een keuring uit 2024 bij de buren), opstalverzekering: ja Grond: Eigen grond. Label: C geldig van 12-08-2025 t/m 04-08-2035 Kitchen: Tidy kitchen Bathroom: Tidy bathroom Heating: Central heating Insulation: Double glazing plastic window panes in the front State of maintenance interior: Good State of maintenance exterior: Good Parking facilities: Good Parking costs : Yes, parking licence provided by the city of The Hague Accessibility: Good, near to public transport, Central station, exit roads and the city centre of The Hague.
| Referentienummer | 08348 | 
| Vraagprijs | € 395.000,- k.k. | 
| Servicekosten | € 80,- | 
| Aanvaarding | Direct | 
| Aangeboden sinds | Woensdag 10 september 2025 | 
| Laatste wijziging | Donderdag 2 oktober 2025 | 
| Type object | Appartement, bovenwoning | 
| Woonlaag | 1e woonlaag | 
| Soort bouw | Bestaande bouw | 
| Bouwperiode | 1931 | 
| Dakbedekking | Bitumen | 
| Type dak | Platdak | 
| Woonoppervlakte | 73 m² | 
| Inhoud | 300 m³ | 
| Aantal bouwlagen | 1 | 
| Aantal kamers | 4 (waarvan 2 slaapkamers) | 
| Aantal badkamers | 1 | 
| Ligging | Aan rustige weg Dichtbij openbaar vervoer In bosrijke omgeving | 
| Energielabel | C | 
| Warmtebron | Gas | 
| Combiketel | Ja | 
| Eigendom | Eigendom | 
| Warm water | CV-ketel | 
| Ingeschreven bij de KvK | Ja | 
| Jaarlijkse vergadering | Ja | 
| Opstal verzekering | Ja | 
| Kadastrale aanduiding | Den Haag AU 3292 | 
| Perceeloppervlakte | 202 m² | 
| Omvang | Appartementsrecht of complex | 
| Eigendomsituatie | Eigen grond | 
 
             
             
             
             
             
             
             
             
             
             
             
             
             
             
             
             
             
             
             
             
             
             
             
             
             
             
             
             
             
             
             
             
             
             
             
             
             
             
             
             
             
             
             
             
             
             
             
             
             
             
             
             
             
             
             
             
            