Beschrijving

Leuke opgeknapte parterre met voor- en achterzijde kunststof kozijnen, met ruime tuin met in de middagzon, gelegen in de kindvriendelijke wijk Oostbroek-zuid. Dichtbij scholen en winkels. Voorzien van 3 slaapkamers, badkamer en toilet en een nieuw keukenblok. Kortom de parterre is een bezichtiging waard.

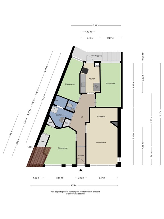
Indeling

Indeling Hal, overloop, woonkamer, voorzien van laminaat vloer, voorzijkamer met meterkast (4 groepen), ruime badkamer voorzien van wastafel en wasmachine aansluiting, toilet, 2 achter zijkamers Nette keukenblok met deur naar de ruime achtertuin (ruim 14 meter lang), zitkamer voorzijde met eetgedeelte en nieuwe laminaat vloer. Zie de plattegronden voor de afmetingen.

Bijzonderheden

Bouwjaar:1935 
Oppervlakte: 84 m2 
Oplevering: in overleg 
Keuken: Nieuw Keukenblok 
Badkamer: Nette badkamer voorzien van wastafel en wasmachine aansluiting. 
Electra: Meterkast met 4 groepen 
Verwarming: combiketel 
Warm water: combiketel 
Isolatie: Kunststof kozijnen met dubbelglas. 
Bereikbaarheid: Goed, nabij openbaar vervoer, scholen, winkels en uitvalswegen. Ligging: Oostbroek-Zuid, op 10 minuten afstand van het Centrum van Den Haag en het strand. 
Grond: Eigen grond. 
VvE: Actieve V.v.E.; bijdrage € 75,-p/m, 1/3e aandeel. 
Clausules: In onze koopovereenkomst worden verkoopclausules opgenomen. Ouderdomsclausule en asbest clausule i.v.m. bouwjaar en niet bewoningsclausule is standaard van toepassing 
Energieprestatiecertificaat: Het object wordt wel met een definitief energielabel geleverd. 
Tuin: Tuin met ligging op in de middagzon, tuin is ruim 14 meter lang

Kenmerken