Beschrijving

Op een zeer centrale locatie, nabij diverse winkels en uitvalswegen, een ruime dubbel benedenhuis met tuin, bouwjaar 2017. 4 kamer parterre en eerste verdieping woning met achtertuin, een gewild oppervlakte van 90 m², tuin en inpandige berging. Het centrum van Den Haag en de Haagse Markt zijn op korte afstand bereikbaar.

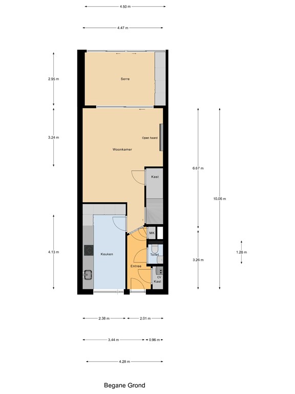
Indeling

Begane grond:
Entree, cv opstelplaats, moderne toilet, voorzien van een fontein, meterkast. 
Gesloten keuken, voorzien van L-vormig opstelling, voorzien van granito aanrechtblad, diverse inbouw apparatuur, Simens van merk, hoog versie koelkast, hoog versie aparte vriezer, combinatie, oven, magnetron, afzuigkap, 5 pits inductie kookplaat en vaatwasser, er is ook een Quooker ingebouwd in de keuken. 
Woonkamer, voorzien van visgraad laminaat vloer, inbouw tv-wand meubel, sier openhaard, toegang tot afgesloten serre, voorzien van plavuizen vloer en een moderne bijkeuken, via schuifdeur toegang tot tuin. 
1e verdieping:
Trap op naar 1e verdieping, overloop voorzien van plavuizen vloer, badkamer, is voorzien van plavuizen vloer, inloopdouche, wastafelmeubel en tweede zwevend toilet, wasmachine, droger aansluiting, slaapkamer 1 aan de voorzijde, slaapkamer 2 aan de achterzijde, achterzij slaapkamer 3. Zie de plattegronden voor afmetingen.

Bijzonderheden

- bouwjaar 2017 
- energielabel A+ 
- eeuwigdurende erfpacht, grondwaarde €15.361, canon € 170,00 per jaar.
- elektra 8 groepen en voorzien van aardlekschakelaar.
- rondom kunststof kozijnen met dubbel glas 
- C.V.-combiketel Nefit HR '17, laatste onderhoud november '25 
- vloerverwarming door gehele woning 
- oplevering in overleg, kan snel
 - Actieve V.v.E. bijdrage € 84,28/maand 
- Incl. collectieve opstalverzekering.

Kenmerken