Beschrijving

Heerlijk ruim (drie) dubbelbovenhuis uit de jaren '30 met een woonoppervlak van circa 112 m², twee balkons en een werkelijk fantastisch dakterras van 20 m². De woning heeft 4 slaapkamers van goed formaat, een ruime badkamer en is grotendeels voorzien van dubbel glas. Gelegen op eigen grond. 
Bereikbaarheid en ligging: De woning ligt in het brede gedeelte van de Hoekwaterstraat met vrij uitzicht op het groen en is uitstekend gesitueerd ten opzichte van het openbaar vervoer (NS station Laan van NOI, Randstadrail en diverse busverbindingen) en de uitvalswegen A4 en A12. Daarnaast zijn er uitgebreide winkelmogelijkheden in de directe omgeving zoals het winkelcentrum de Julianabaan in Voorburg, de gezellige Theresiastraat in Den Haag, maar ook de Haagse binnenstad is in mum van tijd met de fiets te bereiken.

Indeling

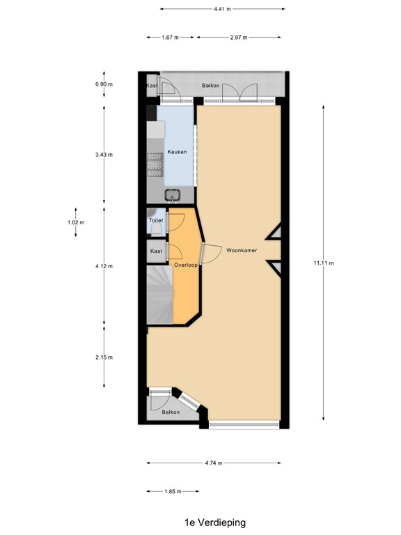
Entree woning, hal met meterkast en trap naar de eerste verdieping. Overloop met een toilet en een praktische vaste kast. De ruime woon -/eetkamer - met laminaat vloer, heeft een erker aan de voorzijde met een klein balkon en er is een balkon over de volle breedte aan de achterzijde van het appartement. 
De nette L-vormig open keuken is voorzien van granito aanrechtblad, diverse inbouwapparatuur zoals een 5 pits gas kookplaat, afzuigkap, een hete lucht oven, een magnetron en een vaatwasser. Vanuit de keuken eveneens toegang tot het achterbalkon.
Trap naar de 2e woonlaag, overloop, ruime badkamer, voorzien van ligbad, aparte doucheruimte, wastafel meubel en een tweede toilet. Ruime slaapkamer aan de voorzijde met een groot dakkapel, tweede ruime slaapkamer aan de achterzijde van de woning en een derde werk –of kinderkamer. De opstelling van de CV combiketel op deze verdieping aanwezig.
Vaste trap naar de 3e woonlaag. Ruime zolderkamer met een vaste kasten. Via een openslaande deuren is het fraaie grote dakterras van circa 20 m² te bereiken. Heerlijk genieten van de hele dag een zonnetje, zicht op de skyline van Den Haag echt een top plaats om te genieten!

Bijzonderheden

- Gelegen op eigen grond; 
- Bouwjaar 1933; 
- Woonoppervlakte circa 110 m²; 
- Heerlijk ruim dakterras van 20 m²; 
- Nefit combiketel (bouwjaar 2015); 
- Grotendeels voorzien van dubbel glas; 
- Parkeren voor de deur (blauwe zone/vergunningsgebied); 
- Gelegen in het brede / groene gedeelte van de Hoekwaterstraat; 
- 1/3e aandeel in de Vereniging van Eigenaren, maandbijdrage € 64,-; 
- Remeha cv-combi ketel, lease toestel, €37,51per maand   
- Oplevering in overleg; 
- Verkoopvoorwaarden LaCle Makelaars van toepassing, waaronder de ouderdomsclausule!

Kenmerken