Met een eigen account kun je panden volgen, opslaan als favoriet, je zoekprofiel opslaan en jouw eigen notities bij een huis maken.
Te koop: Rietveld 179, 2611 LK Delft
€ 350.000,- k.k.
| Type object | Woonhuis, grachtenpand, tussenwoning |
|---|---|
| Woonoppervlakte | 59 m² |
| Status | Prijsverlaging |
| Perceeloppervlakte | 62 m² |
|---|---|
| Aanvaarding | Direct |
Beschrijving
In het hart van het centrum van Delft aan een schilderachtige gracht, op loopafstand van alle voorzieningen treft u dit zeer charmante en lichte uitgebouwde woonhuis met een heerlijk zonnige tuin op het Zuid-Oosten!
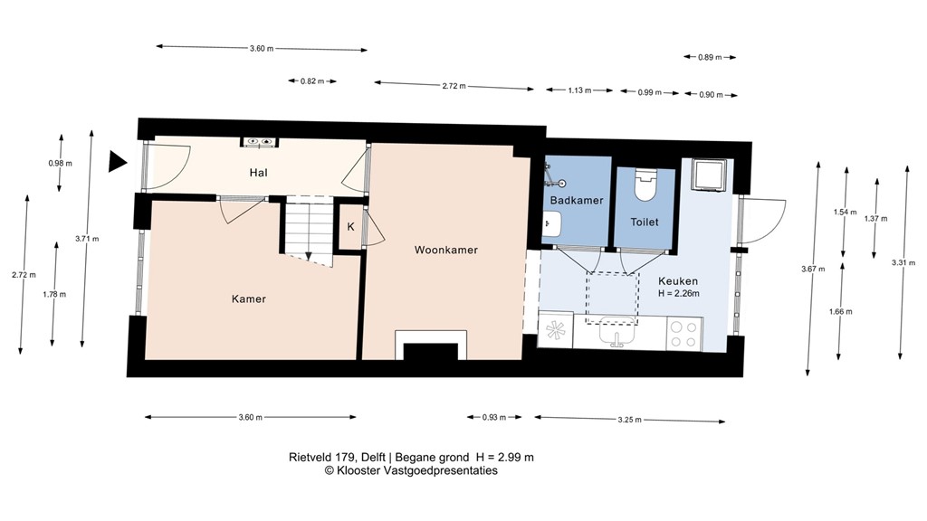
Indeling
Begane grond, hal met meterkast, voorslaapkamer. Woonkamer aan de tuinzijde met schouw en fraaie vaste kasten. Nette keuken in de uitbouw met vaatwasser, koel-vries combinatie, oven, 4 pits inductie kookplaat en een afzuigkap. Doorloop naar de wasmachine ruimte. Een ruim toilet, separaat een ruime douche met wastafel. Toegang tot de zonnige achtertuin. Hele dag zon, dus de hele zomer barbecue.
Eerste verdieping
Opgang naar boven, ruime slaapkamer achter, via een vlizotrap entree tot een goede bergruimte op de vliering, slaapkamer voor, dakkapel aan de voorzijde, De woning is uitgebouwd aan de achterzijde in 2019.
Tuin
Tuin met hele dag zon tot zonsondergang (hele zomer barbeque) en geen achterburen;
Bijzonderheden
-Eerlijk Bieden: Op de site van laclemakelaars staat rechtsonder een button met de tekst: “Breng een bod uit”. Op deze pagina kunt u in de omgeving van Eerlijk Bieden de documenten opvragen of een bod uitbrengen.
-Status: beschermd stadsgezicht en gemeentelijk monument.
-Berging: Bergvliering
-Electra: Meterkast met 8 groepen, 2x aardlekschakelaar, nieuwe schakelkast. De elektra is grotendeels vernieuwd .
-Verwarming: Combiketel Remeha Avanta bouwjaar 2018.
-Isolatie: Grotendeels dubbel glas.
-Staat van onderhoud binnen: Redelijk tot goed.
-Staat van onderhoud buiten: Goed. Achtergevel in 2 stappen gerenoveerd tussen 2019-2021.
-Parkeermogelijkheden: Goed.
-Parkeerkosten: Betaald parkeren. Bewoners- en bezoekersvergunning mogelijk.
-Bereikbaarheid: Goed, nabij openbaar vervoer, scholen, winkels en uitvalswegen.
-Ligging: Centrum Delft. Gelegen aan één van de fraaie grachten in het centrum van Delft met weinig autoverkeer. Op loopafstand van alle binnenstad voorzieningen, maar ook nabij uitvalswegen en recreatiegebied de Delftse Hout.
-Grond: Eigen grond.
-Fundering van de nieuwe uitbouw achter: De uitbouw is gebouwd op een in het werk gestorte beton plaat wat op staal is gefundeerd conform de email wisseling tussen de gemeente en aannemer Smit.
-Vloer: Betonvloer voor en achter (keuken). In de woonkamer ligt een houten vloer.
-Clausules: In onze koopovereenkomst worden verkoopclausules opgenomen. Ouderdomsclausule i.v.m. bouwjaar is standaard van toepassing
-Energieprestatiecertificaat: Label E. de achterzijde van het huis is goed geïsoleerd omdat deze gevel bij het maken van de nieuwe aanbouw geheel vernieuwd is.
-Status: beschermd stadsgezicht en gemeentelijk monument.
-Berging: Bergvliering
-Electra: Meterkast met 8 groepen, 2x aardlekschakelaar, nieuwe schakelkast. De elektra is grotendeels vernieuwd .
-Verwarming: Combiketel Remeha Avanta bouwjaar 2018.
-Isolatie: Grotendeels dubbel glas.
-Staat van onderhoud binnen: Redelijk tot goed.
-Staat van onderhoud buiten: Goed. Achtergevel in 2 stappen gerenoveerd tussen 2019-2021.
-Parkeermogelijkheden: Goed.
-Parkeerkosten: Betaald parkeren. Bewoners- en bezoekersvergunning mogelijk.
-Bereikbaarheid: Goed, nabij openbaar vervoer, scholen, winkels en uitvalswegen.
-Ligging: Centrum Delft. Gelegen aan één van de fraaie grachten in het centrum van Delft met weinig autoverkeer. Op loopafstand van alle binnenstad voorzieningen, maar ook nabij uitvalswegen en recreatiegebied de Delftse Hout.
-Grond: Eigen grond.
-Fundering van de nieuwe uitbouw achter: De uitbouw is gebouwd op een in het werk gestorte beton plaat wat op staal is gefundeerd conform de email wisseling tussen de gemeente en aannemer Smit.
-Vloer: Betonvloer voor en achter (keuken). In de woonkamer ligt een houten vloer.
-Clausules: In onze koopovereenkomst worden verkoopclausules opgenomen. Ouderdomsclausule i.v.m. bouwjaar is standaard van toepassing
-Energieprestatiecertificaat: Label E. de achterzijde van het huis is goed geïsoleerd omdat deze gevel bij het maken van de nieuwe aanbouw geheel vernieuwd is.
Kenmerken
| Overdracht | |
|---|---|
| Referentienummer | 08360 |
| Vraagprijs | € 350.000,- k.k. |
| Status | Prijsverlaging |
| Aanvaarding | Direct |
| Aangeboden sinds | Vrijdag 26 september 2025 |
| Laatste wijziging | Dinsdag 16 december 2025 |
| Bouw | |
|---|---|
| Type object | Woonhuis, grachtenpand, tussenwoning |
| Soort bouw | Bestaande bouw |
| Bouwperiode | 1863 |
| Dakbedekking | Bitumen Dakpannen |
| Type dak | Samengesteld |
| Isolatievormen | Grotendeels dubbel glas |
| Oppervlaktes en inhoud | |
|---|---|
| Perceeloppervlakte | 62 m² |
| Woonoppervlakte | 59 m² |
| Inhoud | 177 m³ |
| Indeling | |
|---|---|
| Aantal bouwlagen | 2 |
| Aantal kamers | 4 (waarvan 3 slaapkamers) |
| Aantal badkamers | 1 (en 1 apart toilet) |
| Locatie | |
|---|---|
| Ligging | Aan rustige weg Aan water In woonwijk |
| Tuin | |
|---|---|
| Type | Achtertuin |
| Hoofdtuin | Ja |
| Oriëntering | Zuidoost |
| Staat | Normaal |
| Energieverbruik | |
|---|---|
| Energielabel | E |
| CV ketel | |
|---|---|
| CV ketel | Remeha Avanta |
| Warmtebron | Gas |
| Bouwjaar | 2018 |
| Combiketel | Ja |
| Eigendom | Eigendom |
| Uitrusting | |
|---|---|
| Warm water | CV-ketel |
| Verwarmingssysteem | Centrale verwarming |
| Tuin aanwezig | Ja |
| Kadastrale gegevens | |
|---|---|
| Kadastrale aanduiding | Delft C 1909 |
| Perceeloppervlakte | 62 m² |
| Omvang | Geheel perceel |
| Eigendomsituatie | Eigen grond |