Met een eigen account kun je panden volgen, opslaan als favoriet, je zoekprofiel opslaan en jouw eigen notities bij een huis maken.
Onder bod: Dedemsvaartweg 580, 2545 AS Den Haag
€ 445.000,- k.k.
| Type object | Appartement, bovenwoning |
|---|---|
| Aanvaarding | In overleg |
| Woonoppervlakte | 92 m² |
|---|---|
| Status | Onder bod |
Beschrijving
Sfeervol en licht 4-kamerappartement (2008) met zonnig balkon, 3 slaapkamers en eigen parkeerplaats
Op de vijfde én topetage van een modern appartementencomplex met lift ligt dit heerlijk lichte en uitstekend afgewerkte 4-kamerappartement van ca. 92 m². De woning beschikt over een zonnig balkon op het zuidwesten, drie volwaardige slaapkamers, een moderne keuken en badkamer, een eigen parkeerplaats en een ruime (fietsen)berging op de begane grond.
Het complex is gunstig gelegen nabij openbaar vervoer, winkels, scholen, sport- en recreatievoorzieningen, winkelcentrum Leyweg en het strand van Kijkduin.
Op de vijfde én topetage van een modern appartementencomplex met lift ligt dit heerlijk lichte en uitstekend afgewerkte 4-kamerappartement van ca. 92 m². De woning beschikt over een zonnig balkon op het zuidwesten, drie volwaardige slaapkamers, een moderne keuken en badkamer, een eigen parkeerplaats en een ruime (fietsen)berging op de begane grond.
Het complex is gunstig gelegen nabij openbaar vervoer, winkels, scholen, sport- en recreatievoorzieningen, winkelcentrum Leyweg en het strand van Kijkduin.
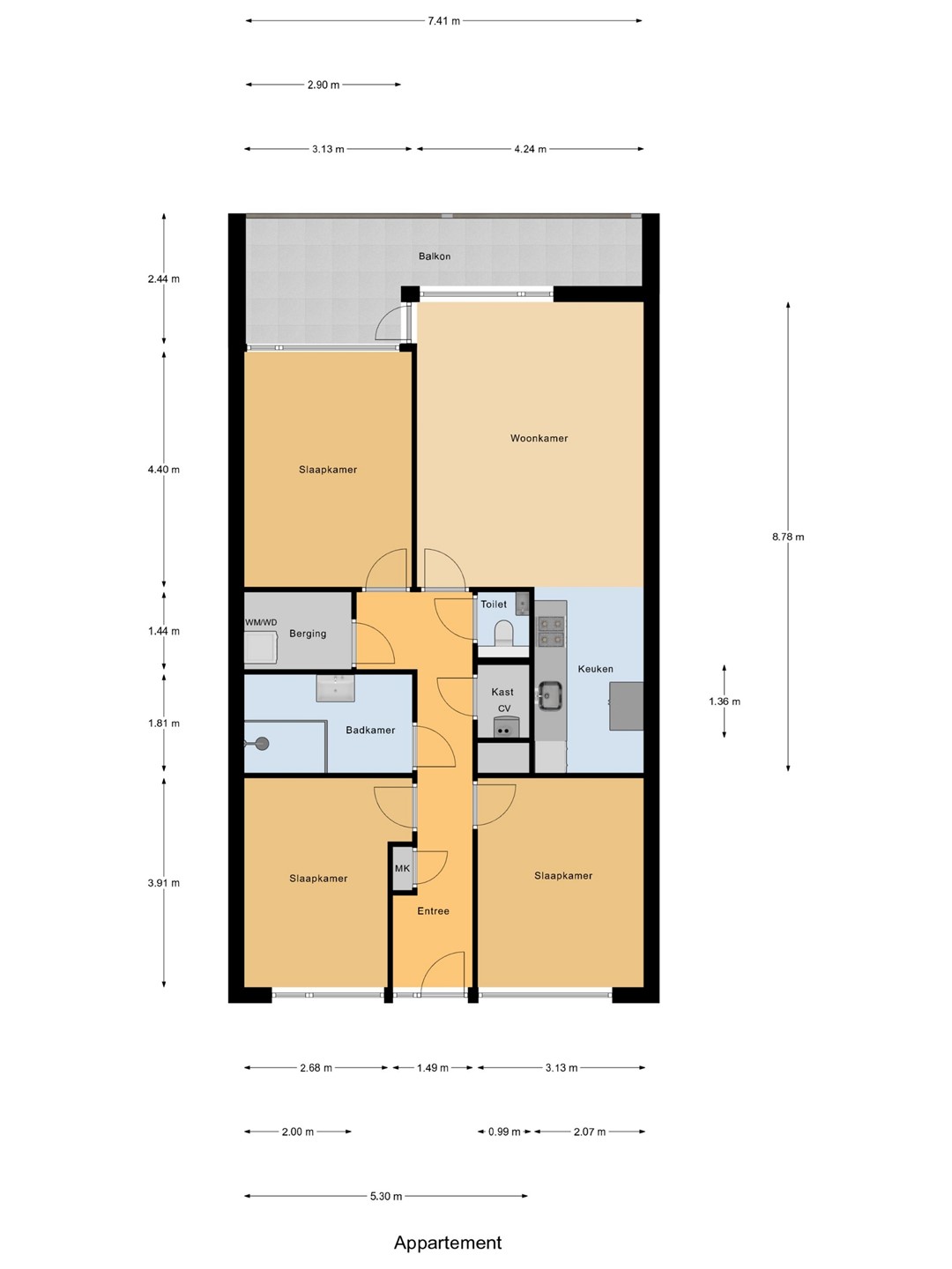
Indeling
Begane grond
• Afgesloten entree met bellen- en brievenbustableau; toegang via lift of trap.
• Eigen parkeerplaats op het afgesloten binnenterrein.
• Privé (fietsen)berging (ca. 2,64 × 2,12 m).
Vijfde etage
• Entree, ruime hal met laminaatvloer en toegang tot alle vertrekken.
• Royale, lichte woonkamer met grote raampartijen en toegang tot het zonnige balkon.
• Moderne open keuken in lichte kleurstelling, voorzien van diverse inbouwapparatuur (combi-oven/magnetron, gaskookplaat, afzuigkap en vaatwasser).
• Drie ruime slaapkamers:
o Slaapkamer 1: ca. 3,84 × 3,12 m
o Slaapkamer 2: ca. 3,84 × 2,72 m
o Ouderslaapkamer: ca. 4,35 × 3,15 m
• Nette, deels betegelde badkamer met douche en wastafelmeubel.
• Separate toiletruimte met wandcloset en fonteintje.
• Ruime wasruimte met wasmachineaansluiting.
• Berging met cv-opstelling.
• Zonnig balkon over de gehele breedte van de woning, gelegen op het zuidwesten — heerlijk genieten van middagzon tot zonsondergang.
Het gehele appartement is voorzien van een nette laminaatvloer.
• Afgesloten entree met bellen- en brievenbustableau; toegang via lift of trap.
• Eigen parkeerplaats op het afgesloten binnenterrein.
• Privé (fietsen)berging (ca. 2,64 × 2,12 m).
Vijfde etage
• Entree, ruime hal met laminaatvloer en toegang tot alle vertrekken.
• Royale, lichte woonkamer met grote raampartijen en toegang tot het zonnige balkon.
• Moderne open keuken in lichte kleurstelling, voorzien van diverse inbouwapparatuur (combi-oven/magnetron, gaskookplaat, afzuigkap en vaatwasser).
• Drie ruime slaapkamers:
o Slaapkamer 1: ca. 3,84 × 3,12 m
o Slaapkamer 2: ca. 3,84 × 2,72 m
o Ouderslaapkamer: ca. 4,35 × 3,15 m
• Nette, deels betegelde badkamer met douche en wastafelmeubel.
• Separate toiletruimte met wandcloset en fonteintje.
• Ruime wasruimte met wasmachineaansluiting.
• Berging met cv-opstelling.
• Zonnig balkon over de gehele breedte van de woning, gelegen op het zuidwesten — heerlijk genieten van middagzon tot zonsondergang.
Het gehele appartement is voorzien van een nette laminaatvloer.
Bijzonderheden
• Bouwjaar 2008
• Woonoppervlakte ca. 92 m²
• Cv combi ketel Intergas bouwjaar 2008
• Eeuwigdurend recht van erfpacht; canon en beheerkosten afgekocht
• Energielabel A
• Volledig voorzien van dubbel glas
• Eigen parkeerplaats en (fietsen)berging op de begane grond
• Actieve VvE, bijdrage ca. €196,37 per maand
• Oplevering in overleg
• Woonoppervlakte ca. 92 m²
• Cv combi ketel Intergas bouwjaar 2008
• Eeuwigdurend recht van erfpacht; canon en beheerkosten afgekocht
• Energielabel A
• Volledig voorzien van dubbel glas
• Eigen parkeerplaats en (fietsen)berging op de begane grond
• Actieve VvE, bijdrage ca. €196,37 per maand
• Oplevering in overleg
Kenmerken
| Overdracht | |
|---|---|
| Referentienummer | 08381 |
| Vraagprijs | € 445.000,- k.k. |
| Servicekosten | € 196,37 |
| Status | Onder bod |
| Aanvaarding | In overleg |
| Aangeboden sinds | Woensdag 3 december 2025 |
| Laatste wijziging | Vrijdag 9 januari 2026 |
| Bouw | |
|---|---|
| Type object | Appartement, bovenwoning |
| Woonlaag | 5e woonlaag |
| Soort bouw | Bestaande bouw |
| Bouwperiode | 2008 |
| Dakbedekking | Bitumen |
| Type dak | Platdak |
| Isolatievormen | Dubbel glas HR-glas Vloerisolatie Volledig geïsoleerd |
| Oppervlaktes en inhoud | |
|---|---|
| Woonoppervlakte | 92 m² |
| Inhoud | 295 m³ |
| Oppervlakte externe bergruimte | 6 m² |
| Indeling | |
|---|---|
| Aantal bouwlagen | 1 |
| Aantal kamers | 4 (waarvan 3 slaapkamers) |
| Aantal badkamers | 1 (en 1 apart toilet) |
| Locatie | |
|---|---|
| Ligging | Dichtbij openbaar vervoer Nabij school Nabij snelweg Vrij uitzicht |
| Energieverbruik | |
|---|---|
| Energielabel | A |
| CV ketel | |
|---|---|
| CV ketel | Intergas |
| Warmtebron | Gas |
| Bouwjaar | 2008 |
| Combiketel | Ja |
| Eigendom | Eigendom |
| Uitrusting | |
|---|---|
| Warm water | CV-ketel |
| Verwarmingssysteem | Centrale verwarming |
| Badkamervoorzieningen | Douche |
| Vereniging van Eigenaren | |
|---|---|
| Ingeschreven bij de KvK | Ja |
| Jaarlijkse vergadering | Ja |
| Periodieke bijdrage | Ja |
| Reservefonds | Ja |
| Meer jaren onderhoudsplan | Ja |
| Opstal verzekering | Ja |
| Kadastrale gegevens | |
|---|---|
| Kadastrale aanduiding | Den Haag AW 3431 |
| Perceeloppervlakte | 4.615 m² |
| Omvang | Appartementsrecht of complex |
| Eigendomsituatie | Erfpacht |