Met een eigen account kun je panden volgen, opslaan als favoriet, je zoekprofiel opslaan en jouw eigen notities bij een huis maken.
Te koop: Hendrik van Deventerstraat 158, 2563 XZ Den Haag
€ 399.000,- k.k.
| Type object | Appartement, bovenwoning |
|---|---|
| Aanvaarding | Direct |
| Woonoppervlakte | 82 m² |
|---|---|
| Status | Nieuw in verkoop |
Beschrijving
Ruim dubbel bovenhuis op toplocatie in het Valkenboskwartier
Gelegen in het mooiste deel van de Hendrik van Deventerstraat, om de hoek van de Valkenboskade, de Copernicusstraat en het gezellige plein, bevindt zich dit dubbele bovenhuis met veel potentie.
De ligging is uitstekend: op korte afstand van de winkels van de Fahrenheitstraat en Weimarstraat, diverse scholen, horeca en openbaar vervoer. Ook het strand, de duinen, het centrum van Den Haag en de uitvalswegen zijn snel en eenvoudig bereikbaar.
De woning beschikt over een ruime en lichte woonkamer met erker aan de voorzijde, wat zorgt voor een prettige lichtinval. In totaal zijn er vier slaapkamers aanwezig, waardoor de woning geschikt is voor gezinnen of voor het combineren van wonen en werken.
Aan de achterzijde bevindt zich een zonnig terras van circa 13 m².
De woning dient gemoderniseerd te worden, wat kopers de mogelijkheid biedt om deze naar eigen smaak en inzicht te verbouwen en in te richten.
Kortom: een ruim dubbel bovenhuis met een goede indeling, veel licht en mogelijkheden, gelegen op een gewilde locatie in Den Haag.
Gelegen in het mooiste deel van de Hendrik van Deventerstraat, om de hoek van de Valkenboskade, de Copernicusstraat en het gezellige plein, bevindt zich dit dubbele bovenhuis met veel potentie.
De ligging is uitstekend: op korte afstand van de winkels van de Fahrenheitstraat en Weimarstraat, diverse scholen, horeca en openbaar vervoer. Ook het strand, de duinen, het centrum van Den Haag en de uitvalswegen zijn snel en eenvoudig bereikbaar.
De woning beschikt over een ruime en lichte woonkamer met erker aan de voorzijde, wat zorgt voor een prettige lichtinval. In totaal zijn er vier slaapkamers aanwezig, waardoor de woning geschikt is voor gezinnen of voor het combineren van wonen en werken.
Aan de achterzijde bevindt zich een zonnig terras van circa 13 m².
De woning dient gemoderniseerd te worden, wat kopers de mogelijkheid biedt om deze naar eigen smaak en inzicht te verbouwen en in te richten.
Kortom: een ruim dubbel bovenhuis met een goede indeling, veel licht en mogelijkheden, gelegen op een gewilde locatie in Den Haag.
Indeling
Entree met meterkast en trap naar de eerste etage.
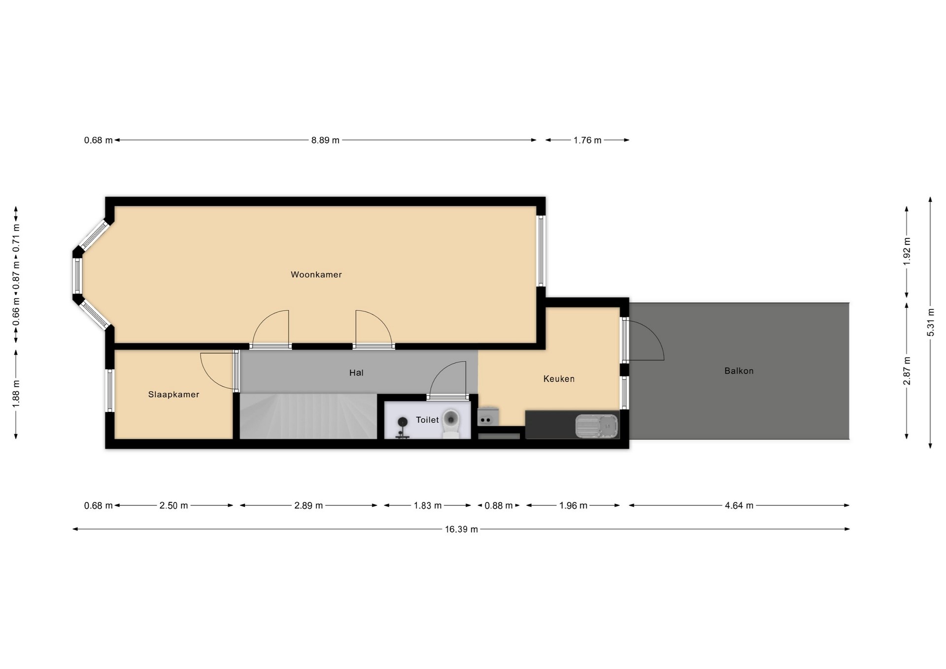
Overloop met toegang tot de ruime woonkamer, toilet met douche, een slaapkamer en de keuken met toegang tot het ruime zonnige terras van circa 13 m².
Trap naar de tweede etage.
Overloop met toegang tot drie slaapkamers.
Overloop met toegang tot de ruime woonkamer, toilet met douche, een slaapkamer en de keuken met toegang tot het ruime zonnige terras van circa 13 m².
Trap naar de tweede etage.
Overloop met toegang tot drie slaapkamers.
Balkon
Zonnig dakterras op het Zuid-Westen van ca 13m2
Bijzonderheden
- Eerlijk Bieden: Op de site van laclemakelaars staat rechtsonder een button met de tekst: “Breng een bod uit”. Op deze pagina kunt u in de omgeving van Eerlijk Bieden de documenten opvragen of een bod uitbrengen.
- Keuken: eenvoudige keuken met losstaande oven/gasfornuis, afzuigkap, koelvries combinatie, vaatwasser.
- Badkamer: toilet/badkamer combinatie
- Electra: Meterkast met 5 groepen, aardlekschakelaar, nieuwe schakelkast, H&L tariefmeter
- Verwarming/ warm water: Combiketel.
- Isolatie: Grotendeels dubbel glas. M.U.V. de keuken en een kiepraam in de slaapkamer.
- Staat van onderhoud binnen: Voldoende
- Staat van onderhoud buiten: Goed
- Parkeermogelijkheden: Goed
- Parkeerkosten: betaald parkeren na 18:00. Bewoners- en bezoekersvergunning mogelijk.
- Bereikbaarheid: Goed, nabij openbaar vervoer, scholen, winkels en uitvalswegen.
- Ligging: Valkenboskwartier, op 10 minuten afstand van het Centrum van Den Haag en het strand.
- VvE: Actieve V.v.E.; bijdrage € 100, aandeel VvE 2/3 nrs.
inschrijving KvK: nee, jaarlijkse vergadering: ja, periodieke bijdrage: ja, reservefonds: ja op 31-3-2026 € 8.522,53.
- Grond: Eigen grond.
- Energieprestatiecertificaat: Label D, geldig tot 06-03-2036.
- Verkoopcondities:
> Biedingen verlopen via laclemakelaars.nl, breng een bod uit, eerlijk Bieden
> Oplevering in overleg, korte termijn mogelijk;
> Notaris keuze aan koper mits gelegen in Den Haag;
> Ongeacht het bouwjaar en de staat van onderhoud zal een ouderdomsclausule worden opgenomen.
> In onze koopovereenkomst worden verkoopclausules opgenomen.
- Keuken: eenvoudige keuken met losstaande oven/gasfornuis, afzuigkap, koelvries combinatie, vaatwasser.
- Badkamer: toilet/badkamer combinatie
- Electra: Meterkast met 5 groepen, aardlekschakelaar, nieuwe schakelkast, H&L tariefmeter
- Verwarming/ warm water: Combiketel.
- Isolatie: Grotendeels dubbel glas. M.U.V. de keuken en een kiepraam in de slaapkamer.
- Staat van onderhoud binnen: Voldoende
- Staat van onderhoud buiten: Goed
- Parkeermogelijkheden: Goed
- Parkeerkosten: betaald parkeren na 18:00. Bewoners- en bezoekersvergunning mogelijk.
- Bereikbaarheid: Goed, nabij openbaar vervoer, scholen, winkels en uitvalswegen.
- Ligging: Valkenboskwartier, op 10 minuten afstand van het Centrum van Den Haag en het strand.
- VvE: Actieve V.v.E.; bijdrage € 100, aandeel VvE 2/3 nrs.
inschrijving KvK: nee, jaarlijkse vergadering: ja, periodieke bijdrage: ja, reservefonds: ja op 31-3-2026 € 8.522,53.
- Grond: Eigen grond.
- Energieprestatiecertificaat: Label D, geldig tot 06-03-2036.
- Verkoopcondities:
> Biedingen verlopen via laclemakelaars.nl, breng een bod uit, eerlijk Bieden
> Oplevering in overleg, korte termijn mogelijk;
> Notaris keuze aan koper mits gelegen in Den Haag;
> Ongeacht het bouwjaar en de staat van onderhoud zal een ouderdomsclausule worden opgenomen.
> In onze koopovereenkomst worden verkoopclausules opgenomen.
Kenmerken
| Overdracht | |
|---|---|
| Referentienummer | 08422 |
| Vraagprijs | € 399.000,- k.k. |
| Status | Nieuw in verkoop |
| Aanvaarding | Direct |
| Aangeboden sinds | Dinsdag 28 april 2026 |
| Bouw | |
|---|---|
| Type object | Appartement, bovenwoning |
| Woonlaag | 1e woonlaag |
| Soort bouw | Bestaande bouw |
| Bouwperiode | 1917 |
| Dakbedekking | Bitumen Dakpannen |
| Type dak | Samengesteld |
| Oppervlaktes en inhoud | |
|---|---|
| Woonoppervlakte | 82 m² |
| Inhoud | 148 m³ |
| Oppervlakte gebouwgebonden buitenruimte | 13 m² |
| Indeling | |
|---|---|
| Aantal bouwlagen | 3 |
| Aantal kamers | 5 (waarvan 4 slaapkamers) |
| Locatie | |
|---|---|
| Ligging | Aan rustige weg Nabij school Nabij snelweg |
| Energieverbruik | |
|---|---|
| Energielabel | D |
| CV ketel | |
|---|---|
| Warmtebron | Gas |
| Combiketel | Ja |
| Eigendom | Eigendom |
| Uitrusting | |
|---|---|
| Warm water | CV-ketel |
| Verwarmingssysteem | Centrale verwarming |
| Vereniging van Eigenaren | |
|---|---|
| Jaarlijkse vergadering | Ja |
| Periodieke bijdrage | Ja |
| Reservefonds | Ja |
| Kadastrale gegevens | |
|---|---|
| Kadastrale aanduiding | Den Haag AM 6999 |
| Perceeloppervlakte | 109 m² |
| Omvang | Appartementsrecht of complex |
| Eigendomsituatie | Eigen grond |
| Indexnummer | 2 |