Met een eigen account kun je panden volgen, opslaan als favoriet, je zoekprofiel opslaan en jouw eigen notities bij een huis maken.
Verkocht: Perenstraat 66, 2564 SG Den Haag
€ 399.000,- k.k.
| Type object | Appartement, bovenwoning |
|---|---|
| Aanvaarding | In overleg |
| Woonoppervlakte | 79 m² |
|---|---|
| Status | Verkocht |
Beschrijving
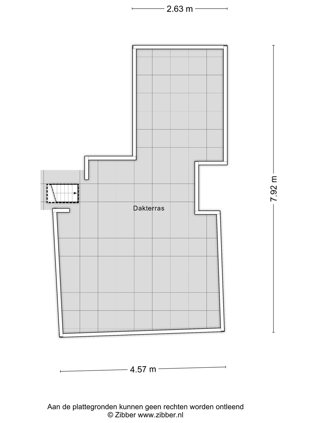
KNUS APPARTEMENT MET ENORM DAKTERRAS
Welkom in jouw nieuwe thuis aan de Perenstraat in de geliefde Vruchtenbuurt! Dit sfeervolle, instapklare bovenhuis is klaar om jou te verwelkomen.
Wie deze bovenwoning binnenstapt, voelt het meteen: hier leeft de sfeer van bouwjaar 1932 nog altijd door diepe vensterbanken, hoge plafonds en de authentieke paneeldeuren. Maar dan gecombineerd met het gemak van nu. De royale woonkamer met open keuken is licht, ruimtelijk en heerlijk om te relaxen, gasten te ontvangen of gewoon ongestoord te genieten van je eigen plek na een drukke dag.
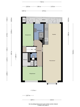
De woning heeft 2 slaapkamers (waarvan 1 met een grote inloopkast), een riante woonkamer met open keuken voorzien van alle inbouwapparaten, een mooie en frisse badkamer met ruime douche en dubbel brede wastafel met meubel en nog ruimte genoeg voor een bergkast.
Het energielabel E betreft een oud label. Sinds de aankoop door de huidige eigenaar is de woning gasloos gemaakt en waar nog enkel glas zat is dit vervangen door dubbel glas, waarmee een mooie stap naar duurzaamheid is gezet.
De VvE is actief en het onderling contact is erg goed.
Kortom, dit leuke stadsappartement is echt de moeite waard.
Mogen wij je uitnodigen voor een bezichtiging?
Ligging:
De Vruchtenbuurt staat bekend om z’n gemoedelijke sfeer, vriendelijke buren en fijne mix van stadse reuring en rust. Lopend naar de bakker op de hoek, fietsen richting zee of na je werk nog even ergens een hapje eten: het is hier allemaal binnen handbereik. OV, scholen, hippe koffietentjes en winkels? Check!
Indeling:
Open portiek naar 1e verdieping, entree woning/tochtportaal met bergruimte en groepenkast. Trap naar woonverdieping, centrale gang met toegang tot alle ruimtes.
Vanuit de woonkamer, badkamer en achtergelegen slaapkamer toegang tot het balkon.
Vaste trap naar dakterras.
Wat u verder nog wilt weten:
VvE actief, 1/6e aandeel, bijdrage € 120,- p/maand
Eigen grond
Elektra: vernieuwde groepenkast, 11 groepen en 3 aardlekschakelaars
Ouderdoms- en materialenclausule wordt opgenomen in de koopakte
Notariskeus voorbehouden aan koper doch binnen het werkgebied Haaglanden
Welkom in jouw nieuwe thuis aan de Perenstraat in de geliefde Vruchtenbuurt! Dit sfeervolle, instapklare bovenhuis is klaar om jou te verwelkomen.
Wie deze bovenwoning binnenstapt, voelt het meteen: hier leeft de sfeer van bouwjaar 1932 nog altijd door diepe vensterbanken, hoge plafonds en de authentieke paneeldeuren. Maar dan gecombineerd met het gemak van nu. De royale woonkamer met open keuken is licht, ruimtelijk en heerlijk om te relaxen, gasten te ontvangen of gewoon ongestoord te genieten van je eigen plek na een drukke dag.
De woning heeft 2 slaapkamers (waarvan 1 met een grote inloopkast), een riante woonkamer met open keuken voorzien van alle inbouwapparaten, een mooie en frisse badkamer met ruime douche en dubbel brede wastafel met meubel en nog ruimte genoeg voor een bergkast.
Het energielabel E betreft een oud label. Sinds de aankoop door de huidige eigenaar is de woning gasloos gemaakt en waar nog enkel glas zat is dit vervangen door dubbel glas, waarmee een mooie stap naar duurzaamheid is gezet.
De VvE is actief en het onderling contact is erg goed.
Kortom, dit leuke stadsappartement is echt de moeite waard.
Mogen wij je uitnodigen voor een bezichtiging?
Ligging:
De Vruchtenbuurt staat bekend om z’n gemoedelijke sfeer, vriendelijke buren en fijne mix van stadse reuring en rust. Lopend naar de bakker op de hoek, fietsen richting zee of na je werk nog even ergens een hapje eten: het is hier allemaal binnen handbereik. OV, scholen, hippe koffietentjes en winkels? Check!
Indeling:
Open portiek naar 1e verdieping, entree woning/tochtportaal met bergruimte en groepenkast. Trap naar woonverdieping, centrale gang met toegang tot alle ruimtes.
Vanuit de woonkamer, badkamer en achtergelegen slaapkamer toegang tot het balkon.
Vaste trap naar dakterras.
Wat u verder nog wilt weten:
VvE actief, 1/6e aandeel, bijdrage € 120,- p/maand
Eigen grond
Elektra: vernieuwde groepenkast, 11 groepen en 3 aardlekschakelaars
Ouderdoms- en materialenclausule wordt opgenomen in de koopakte
Notariskeus voorbehouden aan koper doch binnen het werkgebied Haaglanden
Kenmerken
| Overdracht | |
|---|---|
| Referentienummer | 08361 |
| Vraagprijs | € 399.000,- k.k. |
| Verwarming | € 180,- |
| Status | Verkocht |
| Aanvaarding | In overleg |
| Aangeboden sinds | Vrijdag 3 oktober 2025 |
| Laatste wijziging | Dinsdag 18 november 2025 |
| Bouw | |
|---|---|
| Type object | Appartement, bovenwoning |
| Woonlaag | 3e woonlaag |
| Soort bouw | Bestaande bouw |
| Bouwperiode | 1932 |
| Dakbedekking | Bitumen |
| Type dak | Platdak |
| Isolatievormen | Dubbel glas |
| Oppervlaktes en inhoud | |
|---|---|
| Woonoppervlakte | 79 m² |
| Inhoud | 262 m³ |
| Oppervlakte overige inpandige ruimten | 0,5 m² |
| Oppervlakte gebouwgebonden buitenruimte | 35,8 m² |
| Indeling | |
|---|---|
| Aantal bouwlagen | 1 |
| Aantal kamers | 3 (waarvan 2 slaapkamers) |
| Aantal badkamers | 1 (en 1 apart toilet) |
| Locatie | |
|---|---|
| Ligging | Aan rustige weg In woonwijk |
| Energieverbruik | |
|---|---|
| Energielabel | E |
| Uitrusting | |
|---|---|
| Warm water | Elektrische boiler |
| Verwarmingssysteem | Water verwarming |
| Badkamervoorzieningen | Douche Wastafel Wastafelmeubel |
| Heeft een balkon | Ja |
| Vereniging van Eigenaren | |
|---|---|
| Ingeschreven bij de KvK | Ja |
| Jaarlijkse vergadering | Ja |
| Periodieke bijdrage | Ja |
| Reservefonds | Ja |
| Opstal verzekering | Ja |
| Kadastrale gegevens | |
|---|---|
| Kadastrale aanduiding | Den Haag AV 2801 |
| Omvang | Appartementsrecht of complex |
| Eigendomsituatie | Eigen grond |